Submitted by WA Contents
Foster + Partners completes Hankook Technoplex on the outskirts of Seoul
Korea, South Architecture News - Oct 01, 2020 - 14:03 6130 views

Foster + Partners has completed a new office building on the outskirts of Seoul in South Korea, the project was designed to be a new headquarters of Hankook in Pangyo.
Named Hankook Technoplex, Foster + Partners-designed new building embraces several themes that are symbolic of Hankook’s desire to create a dynamic office environment that supports flexible working styles, as the company looks towards the future.
The building serves as a catalyst for change for the company’s ongoing efforts to inculcate a progressive corporate culture.
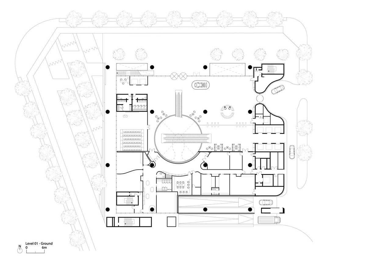
The new Technoplex reflects Hankook’s development as a global brand, echoing the excellence in engineering that the company represents. The ten-storey building houses the Hankook offices and its subsidiaries, alongside a state-of-the-art business centre with a 175-seat auditorium.

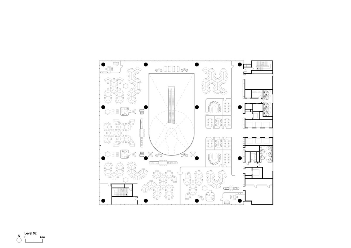
The floorplates spiral around a central atrium, creating spaces of differing heights throughout the building.
The dynamic volume generates visual connections across the different levels encouraging staff interaction, while also letting natural light deep into the heart of the building.

"We wanted to design a workplace that was tailored to Hankook’s needs and their desire to create a new egalitarian working culture," said David Nelson, Head of Design, Foster + Partners.
"Top-level executives are co-located with their teams on different levels, which promotes interaction between the key members, and enables a more fluid flow of information within the company."
"The open-plan workspaces can be configured organically to promote collaboration between different teams and also provide private space for smaller groups and individuals, all of this enables the building to adapt to changing needs over time, incorporating new ways of working as technologies evolve."

Foster + Partners designed a large atrium containing a large site-specific art installation by Jason Bruges Studio called, "Digital Phyllotaxy".
Visitors experience the immersive media artwork as they ascend to the main reception via an escalator. The artwork creates a visual metaphor for a tree canopy, bringing a sense of the outdoors inside the building.

Travelling up through the spatial artwork, they experience evolving volumes of light, shadow and colour. The reception space includes another triptych media artwork by the same studio called, "Dynamic Tread".
The architects carefully articulated the building's façades to optimise the use of natural light. They used glass louvres that are wrapped around the building at varying levels of density to moderate the indoor light levels.

"For instance, the communal and social areas are designed to be brighter and more relaxed, while the workspaces have stricter controls on light levels complemented by an intelligent artificial lighting system," said Foster + Partners.
"It this way, the façade responds to the activities taking place inside the building, also giving the building a unique visual identity."
"The building wholeheartedly embraces the principles of biophilia to create a workplace that is focussed on wellbeing and sustainability. Indoor trees define breakout spaces on each level with greenery travelling to the top of the building," said Nigel Dancey, Head of Studio, Foster + Partners.
"The floorplates spiral around a central atrium, creating spaces of differing heights throughout the building."
"The dynamic volume generates visual connections across the different levels encouraging staff interaction, while also letting natural light deep into the heart of the building," Dancey added.

For this project, the studio wanted to break down the traditional hierarchical barriers and create a more egalitarian workplace, top-level executives are co-located with their teams on different levels.
An executive business lounge is situated on the top floor and provides a space for company executives to meet informally, which promotes interaction between the key members, and enables a more fluid flow of information within the company.

The building is sandwiched by social spaces, with the healthcare facilities, staff restaurant, and gymnasium in the first basement, and a landscaped terrace and a rest area for employees on the roof.
The roof garden takes advantage of unobstructed views across the Pangyo area, offering a unique space for company events.

"The project builds on the success of the Hankook Technodome that we designed earlier, creating two distinctly different buildings bound together by key themes that are common to both buildings," said Iwan Jones, Partner, Foster + Partners.
"The Hankook Technoplex seeks to bring new levels of spatial openness and transparency throughout the interior, creating three-dimensional visual connections between floorplates and to the outside."
Through its warm material palette, naturally lit spaces, and flexible workspaces, the design aims to create a positive experience for the company staff," added Jones.

Heidi Han, Associate, Foster + Partners, said: "The Hankook Technoplex is the product of an incredible collaboration between the client, consultants and the design team. Inspired by the CEO’s vision for the Hankook’s work ethic, we have created a new symbol for the company that reflects its position as an advanced technology company that attracts some of the best talent in the world."


Basement floor plan 1

Ground floor plan

Floor plan level 2

Section

North elevation
Project facts
Project name: Hankook Technoplex
Architects: Foster + Partners
Location: Seoul, South Korea
Size: 47919 m2
Date: 2020
All images © TIME OF BLUE
All drawings © Foster + Partners
> via Foster + Partners
