Submitted by WA Contents
Surman Weston's detached house with porous screen addresses to vernacular architecture in Surrey
United Kingdom Architecture News - Jan 11, 2021 - 13:09 9567 views

London-based architecture practice Surman Weston has designed a detached house that references to local vernacular architecture in Surbiton, Surrey, a suburban neighbourhood of south-western London.
Named Ditton Hill House, the two-storey house, located on a suburban street in Surbiton, features lacework-looking porous brick screen that marks the house from far away.
For this project, the architects take cues from modern white villas and civic buildings built in the 1930s. The house was designed for the founder of bohemian fashion brand Star Mela.

According to the architects, the client’s brief was for a contemporary house with an industrial aesthetic, which would be much more than a simple minimalist open-plan box.
As the studio explains, "the Grade II-listed Art Deco masterpiece Surbiton train station by James Robb Scott became a constant reference point for the architects during the four-year delivery process."
Composed of pitched roof and pure white walls, "it might at first glance seem at odds with its neighbours in this leafy district of west London," the studio added.

"However, its form and materialisation are strongly informed by the local vernacular, and its design has emerged from the careful orchestration of subtle references to it."
With its traditional A-frame elevation, the house takes the language of mock-Tudor ubiquitous in the suburbs and turns it on its head by expressing it in a steel frame – the materiality of modernity.
"The inherent strength of the steel exoskeleton permitted a thinning of the structural steel, which helps to express the pitched form diagrammatically as if it were drawn by a child," added the studio.

In the garden elevation, Crittall-style glazing offers a contemporary twist on the leaded windows synonymous with the mock-Tudor genre. These materials are combined with slurried brick infill panels, another nod to mock-Tudor building techniques.
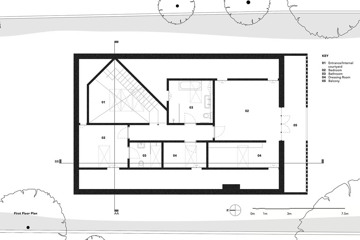
On the ground floor, the architects used diagonal walls to define the program elements of the house. The ground floor includes an entrance courtyard, wc, utility, kitchen, living/dining, study and reception. The first floor includes entrance/internal courtyard, bedroom, bathroom, dressing room and balcony.
The route of the house is designed to offer a range of spatial experiences. Users enter directly into the vertically proportioned triple-height entrance hall.

Upon entering via this voluminous hall that functions as an intermediary space – a sort of internal courtyard – the architects kept the materials raw, with exposed blockwork walls and roughly-screeded concrete floors.
From the light and height of the entrance hall, users step down under the stairs into a darker hallway space beneath a heavyweight concrete soffit, before they move into the more domesticated spaces, arriving in the living room.
Passing from the hallway into the living room, there is a dramatic change in spatial quality, from compression to expansiveness, as the ceiling height increases and panoramic rear windows provide an uninterrupted view of the garden.

The architects preferred to use warmer color palette for this house such as timber floors underfoot with softer plaster walls acting as counterpoints to the steel roof and floor decks that run throughout the house.
The exposed decks add texture to the interior palette and were seen as a modern interpretation of exposed Tudor timber beams.

Upstairs, bedrooms and bathrooms are housed within the “loft space”, which, at five metres in height and primarily lit from above, has an almost church-like peaceful quality.
Access to the garden was a priority of the client. On the upper floor, the master bedroom opens onto an enclosed balcony, where she can enjoy views of the sky and trees.


Ground floor plan

First floor plan
Surman Weston was founded by Tom Surman and Percy Weston in 2014. The practice designs projects that can be flexible to the changing needs of the people that use them and the places they inhabit.
Project facts
Project name: Ditton Hill House
Architects: Surman Weston
Location: Surbiton, Surrey
Date: Completed 2019
Contractor: Wadey Builders
Structural Engineer: Structure Workshop
Services Engineer: Synergy
Ecology Consultant: Astute ecology
Contractor: Wadey Builders
Metalwork Fabricator: Elite Metalcraft
All images © Johan Dehlin
All drawings © Surman Weston
> via Surman Weston
