Submitted by
Community Center In Xi’an Is Raised On Sculptural Base That Features A Rippling Effect
teaserd-62-.jpg Architecture News - Nov 23, 2020 - 16:35 3676 views

Shanghai and Hong Kong-based architecture practice EID Architecture has completed a community center that is raised on a sculptural base that creates a rippling effect to increase sensorial experience.
The center, named LAND Community Center, is located in the new district of Fengdong near Xi’an, China and contains a mixture of programs, including a community service center, cafeteria, gallery, multi-purpose room for educational and recreational purposes, reading room, a daycare center for children.
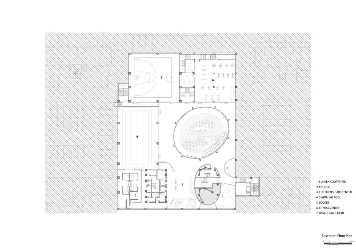
The 4,500-square-metre building also provides a gymnasium for badminton and basketball courts, a fitness workout room and swimming pool in the basement level.

Designed as "a floating gateway for a new residential development and a social and cultural venue" in the neighbourhood, the key component of the building is its public space in the ground level, inviting local neighbourhood to be part of the building.
EID Architecture designed all recreational spaces around an oval sunken courtyard to allow the natural light to penetrate into the underground facilities.

"Beyond the scope of community center itself, the LAND project is designed as an urban structure which aims to provide intimate pockets of public space," said EID Architecture.
"Land Community Center hovers over the entry plaza of the residential neighborhood along the main boulevard of Fengdong district. By elevating the gallery, exhibition space and community service center above ground, this community center frees up more open space for the neighborhood, providing a civic place for casual gathering and communal activities."
"The gravity-defying structure offers pedestrian friendly protection from extreme weather conditions such as harsh sunlight and rain. The landscaped plaza can be accessible for residents of the neighborhoods nearby," the firm added.

The architects added that "the sculptural quality of this building not only creates an identifiable presence for the new district, but also a unique immersion experience for the residents and visitors alike."

The design presents a contrast between the complexity of organic base and simplicity of the upper volume but the studio united these elements in a coherence by creating the duality of Chinese architecture tradition: the integration of the artificial intervention with nature.
"To achieve the sculptural quality and surface effect of the lower portion for the building, a combination of digital fabrication with local crafts were experimented to produce precast GFRC panels," added the architects.
"The mass and weight of the lower portion reference local historical city wall and gateway."

The sculptural base of the community center features a dynamic surface of rippling effect to emanate tactile and sensory experience, while the upper portion of the community center is wrapped around with curved high performance low-iron glass unit, forming a light-filled interior space for community gathering and activities.
In the sunken courtyard, there is a featured Zen garden serving as a visual focal point for the multilevel community center. According to the studio, "an open floor and flowing interior concept are introduced to encourage the interaction and exchange between the residents."
The center is designed for a series of events and featured programmes ranging for civic to recreational activities to boost community experience.

"Designed as a LEED Gold certified building, the entire project was conceived as a bioclimatic infrastructure which tries to obtain its levels of comfort by combining the local natural resources, both climatic and material ones," EID Architecture.
"The building is also designed to stimulate natural ventilation and create thermal mass and shades which are much appreciated during the extreme heat spikes throughout the summer. Natural light is abundant both above and below grade with well-planned program distribution."

Image © Yike Studio
As the architects highlight, LAND Community Center is intended to create a flexible building for a range of community activities, providing a catalyst for fostering a lively neighborhood. It reflects the ethos of city of Xi’an by integrating contemporary design with historical attributes.

In contrast to many rapid urban developments in China, this gravity-defying structure not only establishes a unique architectural expression for the burgeoning residential complex, it maximizes the provision of open and inclusive civic spaces for communal experience, creating a sense of neighborhood and belonging for the otherwise non-descriptive urban district.


Image © Yike Studio

Image © Yike Studio



Image © Yike Studio

Image © Yike Studio

Image © Yike Studio

Image © Yike Studio

Site plan

Axonometric drawing

Basement floor plan

Ground floor plan

Second floor plan

Roof floor plan

Section AA

Section BB

Structure diagram

Wall detail drawing

Wall detail drawing-2
Project facts
Project name: LAND Community Center
Architects: EID Architecture
Location: Xi’an, China
Size: 4,500m2
All images © Lujing Architectural Photography unless otherwise stated.
All drawings © EID Architecture
> via EID Architecture
