Submitted by WA Contents
Kapsimalis Architects built castle-like hotel almost disappearing it on a steep hillside of Oia
Greece Architecture News - Jul 15, 2020 - 13:30 6195 views

Santorini-based architecture studio Kapsimalis Architects has completed a small hotel on a steep hillside of Oia, in Santorini, Greece.
Named Small Hotel in OIA Castle, the 220-square-metre hotel almost disappears thanks to its light brown-gray plaster on the facades and floors and the deep gray in the wooden frames.
Kapsimalis Architects converted this hotel from an old residence built around the late 19th century. On the ground floor, there was an old wood-burning oven, a stable, small warehouses and a rainwater tank, while the main rooms of the residence were on the upper floor.

"In the beginning of the study, the building was in a semi-ruined state with problems in its structural integrity and damages in its shell," said the architects.
After the architects conducted a detailed study on the old building and its morphological-decorative elements, they intended to create an architectural intervention based on the absolute preservation of its original form and interior space - they did not make any alteration to its identity and its integration in the volcanic landscape and the old settlement.

The hotel is located in the northwest part of the traditional village of Oia in Santorini, just below the borders of its old medieval castle, overlooking the sea, the island of Thirasia and the famous sunset of Santorini.
Guests are able to access to the building via a main stepped path that connects the old Castle with Ammoudi, its old harbor.

"Small variations in the exteriors of the building, such as the construction of small ‘’water surfaces’’, the subtle modification of the two main staircases, the addition of built-up seats and the division of some interiors, were made in terms of the necessary hotel use needs," added Kapsimalis Architects.
The team maintained the local volcanic stone on the retaining walls and gently blended in with the materials by using colors and textures found in its surrounding space, almost disappearing into it.

Olives, a palm tree at the entrance of the complex, laventers and thymes, resistant plants to the strong north winds, complement the integration of the synthesis into its environment.
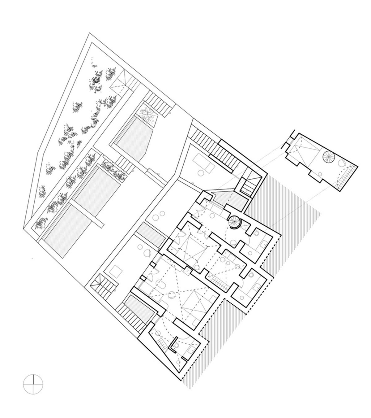
The hotel consists of three hotel rooms on the ground floor and two ones on the first floor, each one with its independent entrance/yard and its open sitting/bedroom/dressing space and bathroom.

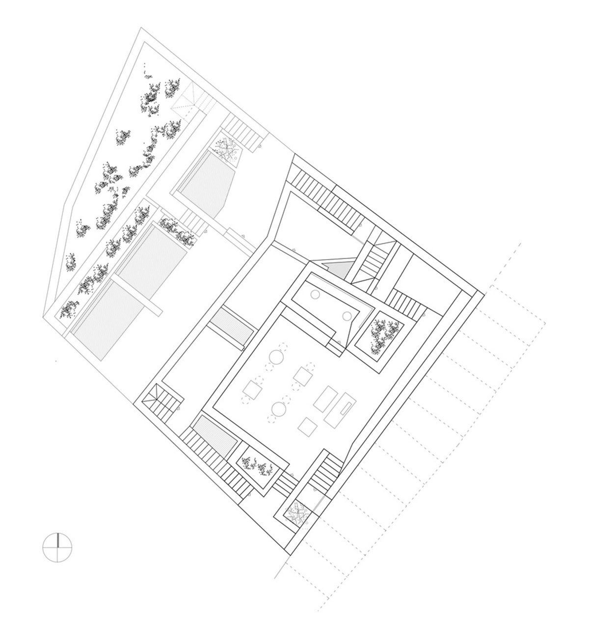
A common lounge was designed on the top of the building for the hotel guests to enjoy the view.
The architects preserved the white plasticity of the former ground floor of cave houses and supplemented by new hand-made built furniture.

"On the contrary, the sharp lines of the interior space of the old residence on the upper floor have been brought out and the addition of hand-made wooden deep-colored furniture and the use of wide coal-grey wooden boards as a floor are selected in terms of a plain neoclassical style quest," explained the studio.

"The construction of the retaining walls for the formation of the outdoor spaces has been made by the use of reinforced concrete and local stone."
The studio used of gunite on the internal and external surfaces of the building, as they explained, this was necessary for its structural reinforcement and waterproofing.

Stones and heat-insulating bricks are used to fill the walls, while colored plaster for the facades. Traditional cement plaster is used for the surfaces of the bathrooms and the attic.


















Floor plan 1

Floor plan 2

Floor plan 3

Section 1

Section 2
Project facts
Project name: Small Hotel in OIA Castle
Architects: Kapsimalis Architects
Location: Santorini, Greece
Size: 220m2
Date: 2018
All images © Giorgos Sfakianakis
All drawings © Kapsimalis Architects
> via Kapsimalis Architects
