Submitted by WA Contents
PHTAA creates flexible wedding venue with half-arch modular elements and white curved walls
Thailand Architecture News - Oct 21, 2019 - 14:03 22610 views

Bangkok-based architecture firm PHTAA Living Design has completed a new wedding venue featuring half-arch modular elements and white curved walls, which becomes the procession itself in Thailand.
Called Aube Wedding Venue, the 1,500-square-metre space emerges as a new typology that elevates traditional wedding spaces to another dimension. Located in Bangkok, Thailand, the space functions as a wedding avenue and multi purpose space.
Half-arched modular elements, white curved walls and long walkways bring guests to different atmospheric assemblages filled with green gardens.

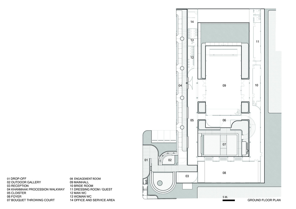
The overall program of the venue includes: outdoor gallery, reception, drop-off, procession walkway, foyer, bouquet throwing court, engagement room, main hall, bride room, dressing room/guest, wc and office and service area.

"Weddings, like many ceremonies, celebrate a person’s transition from one status to another. This transition often involves a procession: in western weddings, the bride enters and walks down the aisle and later the married couple exit after again walking the aisle," said the studio.
"Unique to Thailand is the Khan Maak, a pre-engagement procession, traditionally outside the bride’s house, where the groom and party must pass through ‘golden’ or ‘silver gates’ (string barriers held by the bridal party) in order to reach the bride."

The boldest design element of Aube is the Khan Maak walkway running along the western edge of the building and eventually ending in the engagement room. Here this procession is given its own space, while retaining its traditional outdoor location.
This walkway is a reinterpretation of the village street where the groom and his party can be seen by neighbours viewing from their houses. The sense of movement is heightened by the screening of some spaces between columns to hide the view of the procession from the exterior.

As Thailand has a history of borrowing and mixing cultures, both old and new, Thai weddings use variations on the Khan Maak with Chinese elements, along with components of western weddings.

A purpose-built wedding space must therefore be flexible to accommodate a variety of religions and cultures either in their pure form or with elements borrowed from other traditions. Nowadays, weddings in Thailand have become an opportunity for photographing the event as much as the event itself.

The building tries to reconcile this attitude by balancing between being a stage for the photography and a space which enhances an authentic experience.
Use of white curved walls has the practical advantage of mimicking the walls of a photographic studio to be used either as a blank canvas, aided by diffused light from the skylights, or with the play of light and shadows formed by the curved geometry on the external walls.

The location in suburban Bangkok has necessitated the low-rise scale and the overall layout of being a self-contained, introspective building. Upon arrival, guests wait in a gallery space displaying photographs of the couple. Literally a green room, this space acts as a transition from the outside world.

The two main internal spaces are the main (wedding) hall and engagement hall. The main hall holds 290 people and sits free-standing in a courtyard surrounded on three sides by a U-shaped cloistered structure which allows for under-cover circulation and the inclusion of auxiliary rooms. The engagement hall holds 150 people and is separated from the main hall by the ‘bouquet throwing’ courtyard.

The Khan Maak walkway and cloistered courtyard could have simply been a copy of an arched walkway, or a reinterpretation of a church element. However, arches are deconstructed to half-arch modular elements and reformed after rotating on different axes, clearly giving the building a modern image, open to interpretation. The effect is a snaking ceiling of white concrete.

In terms of construction elements, the Khan Maak walkway utilise expanded polystyrene foam carving and plaster to form the white curvy continuous shape, while elsewhere the sculptural look is achieved using white sand-wash finished concrete.

The theme of the arch and the curved wall is repeated inside the building in various forms, including the sculptural staircase in the courtyard, from where the bride throws her bouquet.

The arches forming both the exterior wall of the main hall and the cloistered structure overlap each other, again creating a feeling of movement.
The curves are scaled down in the cornice of the arch-shaped skylights in the ceiling of the main hall and this cornicing element is re-appropriated as the finish to the wall behind the stage. Curved walls and cut-outs, along with soft curtains, create a memorable, sensual space, which is indicated in the building’s name, Aube, meaning ‘hug’.











Plan

Engagement room drawing

Element diagram

Technical drawing

Drawing

Drawing plan
Project facts
Project name: Aube
Type: architecture & interior design
Location: Bangkok, Thailand
Area: 1500 sq.m.
Design: 2018
Architect: PHTAA living design co.,ltd
Interior designer: PHTAA living design co.,ltd
Structural Engineer: Collage Engineering co., ltd
Lighting designer: jitlekha rampongsar
Landscape designer: teerapong sanguansripisut
Contractor: Kor-It Structural Design and Construction
Building Area: 1500 sq.m.
CI: Instill agency
All images © Beer Singnoi / Ketsiree Wongwan
> via PHTAA Living Design
