Submitted by WA Contents
Jun Murata reveals its Cafe la Loop 86 & Gallery in Shanghai
China Architecture News - Mar 20, 2020 - 16:27 4759 views

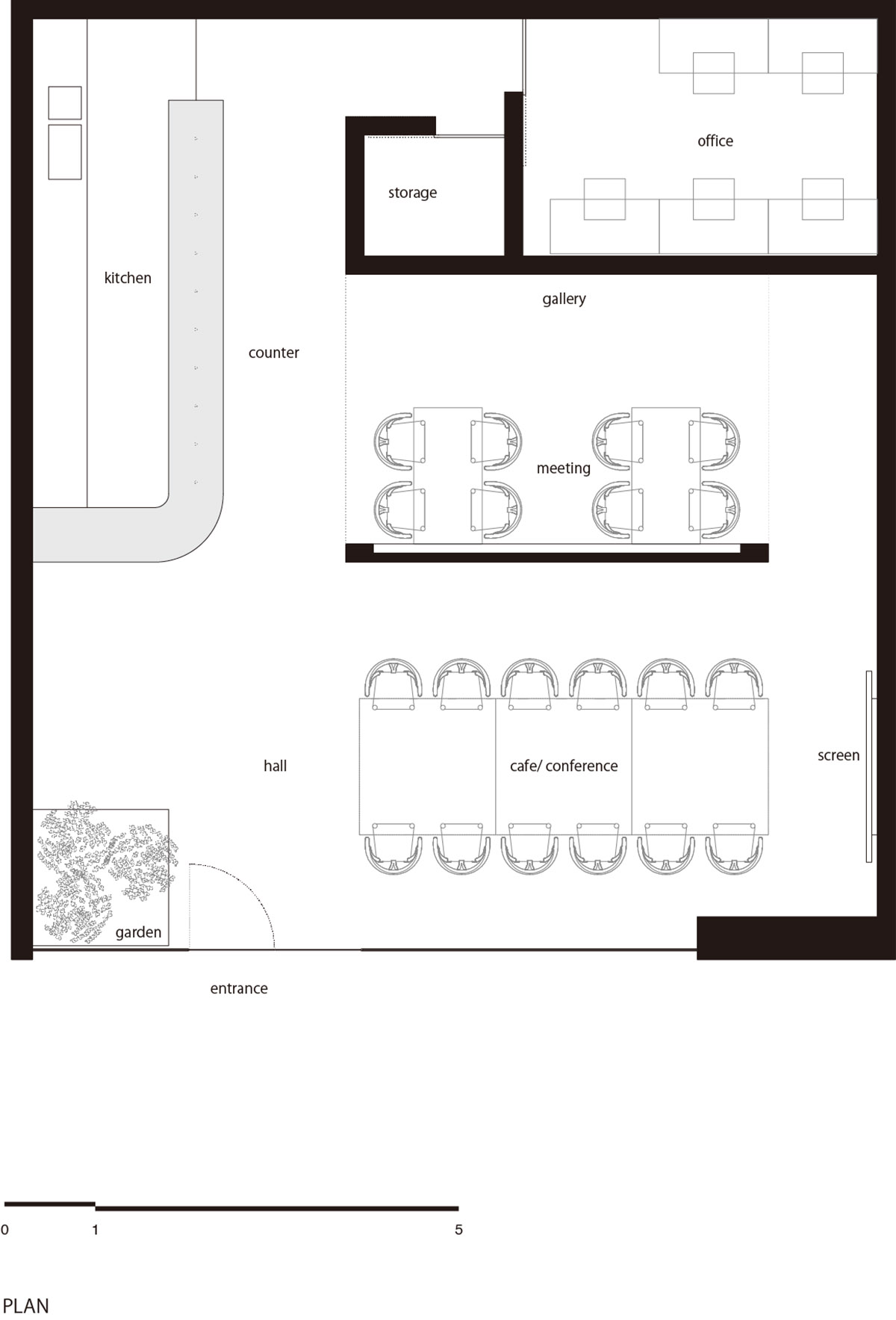
JAM, led by Jun Murata, has completed a cafe and gallery in Shanghai, China. Named Cafe la Loop 86 & Gallery, the 96-square-metre area is a multi-functional space situated within Shanghai‘s shipyard 1862 building.
The concept behind the design focuses on creating a flexible and open interior that serves also as a gallery. Characterized by a pared-back material palette and bare walls, the project has been formed to provide the perfect backdrop for exhibitions.

The program of the scheme comprises of a closed off office and storage room to the back corner, with the rest of the interior designed by the architect to be semi-open.
Within this open space, a partition in the center subtly separates a meeting and gallery space. The remaining area consists of the café, which is articulated by a large white bar, becoming the focal point of the interior.

With regard to materials, the walls and floor have been built in concrete, with the exposed ceiling painted in white to complement the minimal style. To offset this color palette, wood and brass accents are employed to bring an element of warmth to the space, with wishbone chairs by Hans Wegner sitting around a handmade table.

The façade of the café is made from gradated glass, ensuring privacy for the guests. Artificial light has also been considered, with strips used at the base of partitions and under the bar counter to illuminate the spaces and bring the pared-back space to life.
















Project facts
Project name: Cafe la Loop 86 & Gallery
Project location: Shanghai, China
Company name: JAM
Other participants:
Clients: TOYOTOMI Holdings
Completion Year: 2019
Floor area: 1033 ft2 (96 m2)
Design period: oct – nov 2018
Construction period: jan – mar 2019
All images © JAM
> via JAM
