Submitted by WA Contents
Casting moulds form this fluid private residence and dental clinic designed by N MAEDA ATELIER
Japan Architecture News - Oct 02, 2019 - 11:10 22893 views

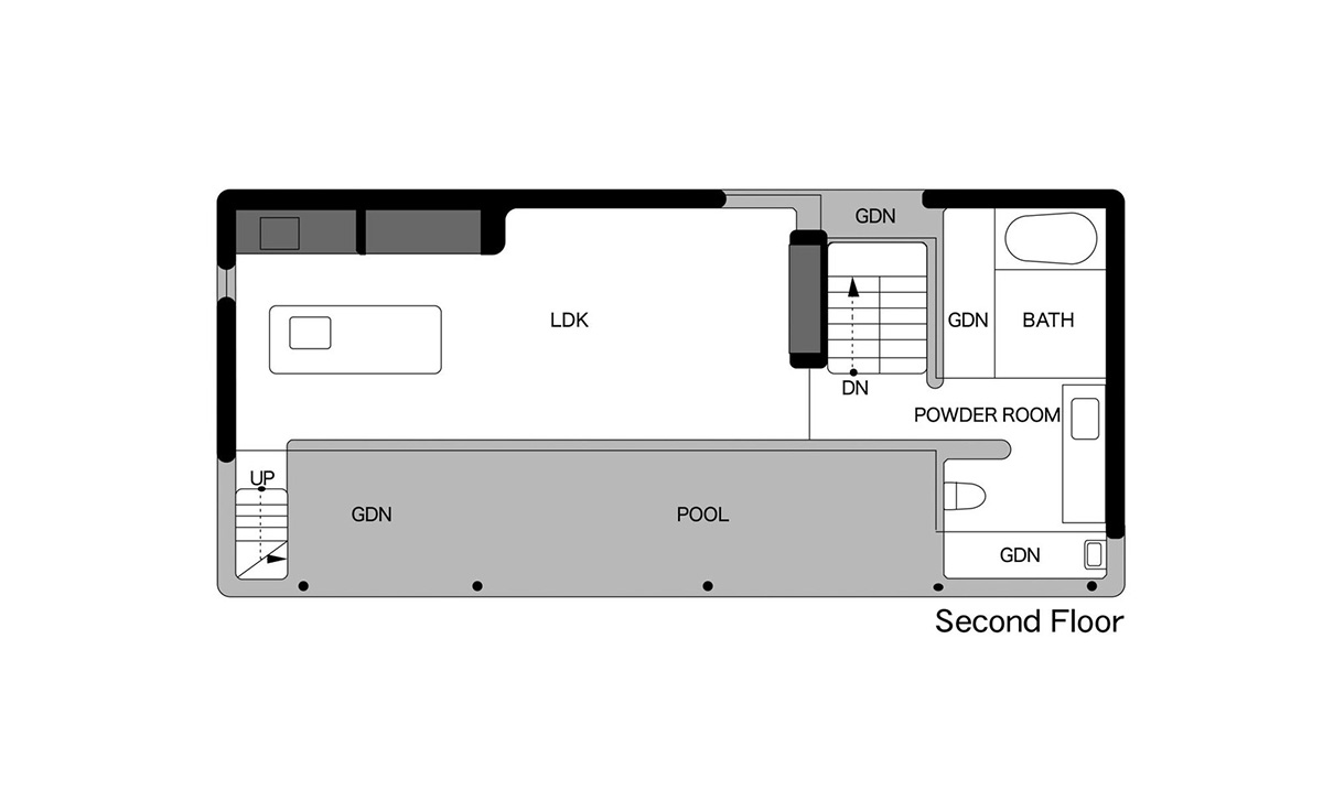
Tokyo-based architecture practice N MAEDA ATELIER has built this private residence and dental clinic by using four casting moulds to prove a "fluid" space throughout the building in Setagaya-ku, Tokyo, Japan.
Named Plastic Moon, the 207-square-metre building is used for both as a private residence of a dentist and his/her clinic. The design of the house is entirely based on a solid-void relationship that play with light and body movement.

For this project, the architects used a different construction technique and a moulding form creates the shape of space.
"According to this positive form, every space in the building alongside its scenery is being created as the negative counterpart to it," said the architects. "Moulding forms are usually being filled with liquid metal in order to shape a certain kind of part or product."

In order to shape the spaces of the three floors of Plastic Moon, four casting moulds were used. [In the lower picture, from left to right, you can see the forms for the basement, first floor, second floor and for the roof.]
Additionally the "height difference of the mould" adds up to 1.2 meters and in some places even breaks open for void-like atria to flood and furthermore connect the rooms with light.

These forms have then been translated into architecture as seen in the next picture. Which practically means, that the casting moulds of the upper picture were translated into the architectural shape of the lower picture while undergoing minor changes during this translation process.

The four moulds are vertically stacked on top of each other. Thus, "liquid" living space for the human being emerges out of the proportions in between the "solid" mutual moulds. And this characteristic seals the difference in the quality of the special spaces in Plastic Moon.

"This difference in quality can be felt emotionally deep throughout the building, no matter in which part of the houses' liquid you might be standing, floating or sitting," added the firm.






















All images © Toshihiro Sobajima
All drawings © N MAEDA ATELIER
> via N MAEDA ATELIER
