Submitted by Rabia Haneef Meo
Modern Residence by Qadri Associates
Pakistan Architecture News - Apr 14, 2019 - 09:24 14131 views

Ejaz Ahmad Qadri an architect from quetta who runs a firm with offices all across Pakistan including many major cities like Islamabad, Karachi, Lahore and Quetta. The firm was setup in quetta in 1996 and continued growing into three more offices in the above mentioned cities.
Mostly working in modern contemporary style, Architect Ejaz Ahmad Qadri aims at bringing innovation through his designs. The architect believes in creating architecture that is responsive towards the contemporary living style of the users and that appeals to the users of the new age while being functional at the same time. The architect also aims at designing sustainable homes for his clients. As architect Ejaz Ahmed Qadri says: "Now architecture is not my profession but it is my Passion."
Planning
The architect Ejaz Ahmed Qadri likes to create user friendly building designs while playing with the volumes of spaces. Accordingly the residence is designed to be user oriented and Eco friendly as the project characterizes a residence that has incorporated nature within a typical residential unit. The house has a linear composition of masses and shows a good balance of the solid and voids in the over all form of the building.
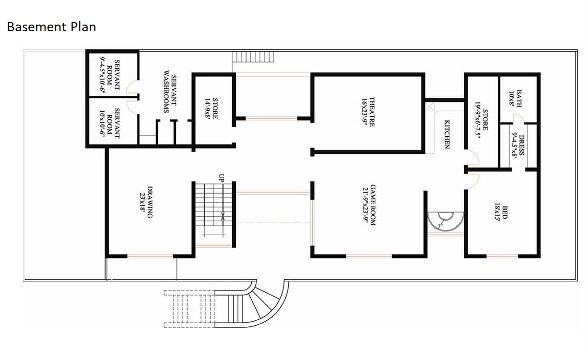
The residence has three stories, the basement, ground floor and the first floor. The basement consists of a bedroom, kitchen, store, servant quarters, theater, a game room and a drawing room while the ground floor has drawing and dining room, lounge, kitchen with a breakfast area, a prayer area and a bedroom. The first floor consists of bedrooms, lounge and a sitting area. The architect seems to have met all the client requirements while providing ample space for all the activities of the users. The spaces are interconnected, well ventilated and well lit.



Interior
The spaces are well designed and show a variety in selection of the materials i.e stone, wood, glass etc. The house has a modern interior. The floors are wooden to give the floor earthy tones and make the house more cozy. The spaces get natural light and ventilation; through the patio with the breakfast area, large glass windows in the lounge and sky lights in the bedroom and also through the large glass windows in other areas of the house. The walls are mostly white or have light pastel shades to give the house a more spacious feel while blending the colors really well with each other. The patio with the breakfast area has a double height and it acts as a light shaft for the space. The bedroom has separate play, study and rest areas with skylights. The house interestingly has a fish aquarium that can be walked over as a glass surface too. The aquarium creates a sense of unity and a visual connection with the large glass window as can be seen in the image.





Exterior
The exterior of the house seems to be very well designed as the sun orientation and glazing of the house have been planned intelligently with a very few openings towards the west which is also the building facade direction. All the large glass windows have been designed to face the north in order to get the maximum light and ventilation with minimum of summer sun. The roof also has a plantation area where rain water harvesting system is also employed to make the house more sustainable. The terrace provides an excellent sitting space also looking below at the surrounding lush greens while merging the interior living spaces with the exterior views.



Project facts
Client: Dr Abdul Hasan.
Architects/Consultants: Qadri Associates.
Project Architect: Ejaz Ahmad Qadri.
Plot Size: 666 Sqyds.
Total Covered Area: 11,823 Sft.
Location: Islamabad.
Status: Completed.
All images Courtesy of Qadri Associates
> via Qadri Associates
