Submitted by WA Contents
ASWA used physical character of leather to design this curved office building in Bangkok
Thailand Architecture News - Jul 26, 2019 - 03:34 18754 views

Bangkok-based architecture firm ASWA (Architectural Studio of Work - Aholic) has completed an office building for a leather manufacturer company in Bangkok, Thailand by wrapping the curved volumes of the building with leather.
Named Office of Lee & Son Leather or OLAS, the material specificity of leather determined the office building's concept and façade according to the architects.
To design the company's new office in Bangkok, the architects benefitted from Lee & Son Leather Company, a well-known leather provider for sub-dealer whose experience in the industry for more than 20 years Thailand.

The company's headquarters design was realized from the conceptual product’s image and identity. The concept of the physicality of leather applied to the form of the building.

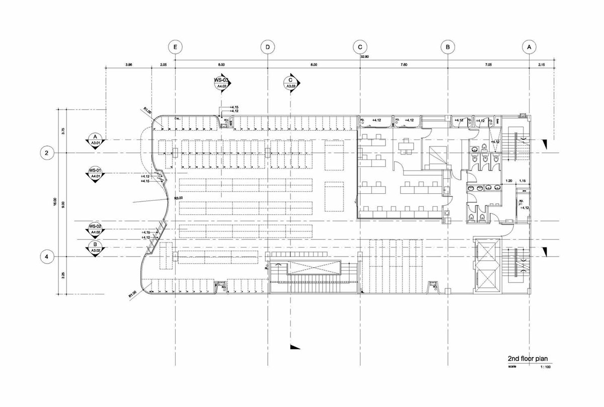
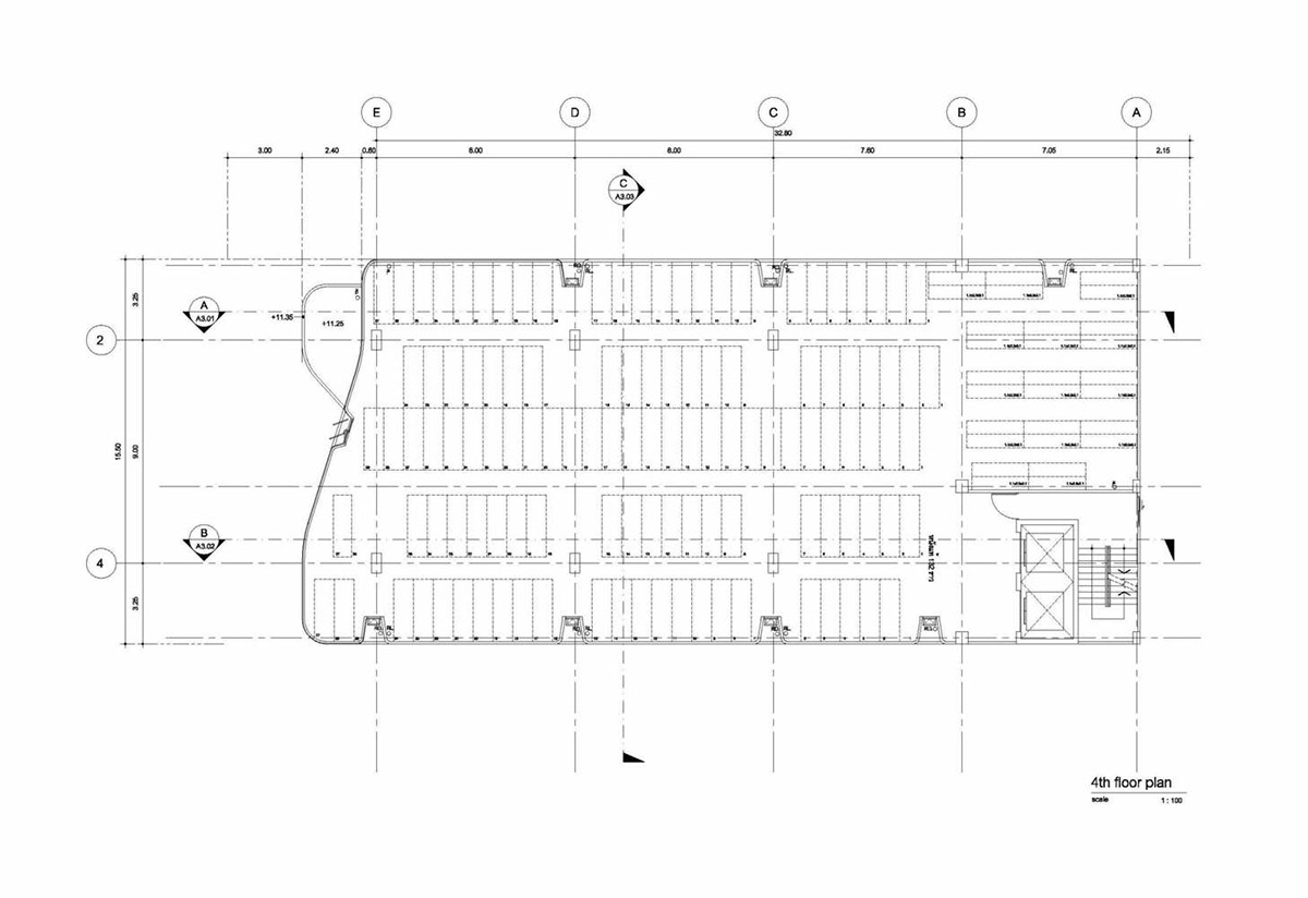
The 2,000-square-metre project consists of 4 floors, where the first level is occupied by parking lots. On the second floor, space is used for leather showcases with the office. A third floor is divided for living units with 3 bedrooms and stocks and a whole floor stock area is located on the fourth floor.

Three black curves façade was realized from a physical character of the leather, like a black leather belt, that can be bend but not to fold. The recessed window with a filler edge intends to invite an indirect light that would not harm the leather.

"Office of Lee & Son Leather is an experiment where architecture, engineering, and construction become parts of the conceptualization and development process in which a building’s physicality and functionality are conceived, not only to represent but also innately from the owner’s true identity," said the architects.










1st floor plan

2nd floor plan

3rd floor plan

4th floor plan

Section A

Elevation 1

Elevation 2

Elevation 4
Project facts
Status: Completed
Location: Bangkok, Thailand
Years: 2016 - 2019
Type: Office + showroom + residentials + stocks
Area: 2,000 sq.m.
All images © Phuttipan Aswakool
> via ASWA
