Submitted by WA Contents
Arias Ranea Architects completes Three Five One Departments in Córdoba
Argentina Architecture News - Jun 24, 2019 - 04:14 11084 views

Arias Ranea Architects has completed a new apartment building in the heart of Córdoba, Argentina. The new building, named Three Five One Departments, is developed as a single-family home and small-scale building in the existing neighborhood, close to the central area and Suquía River.

The design included not only achieving the largest number of housing units but incorporating a bonus: respecting the spatial quality, cross ventilation and very good lighting in all units, plus some common usespaces, respecting a limited budget.
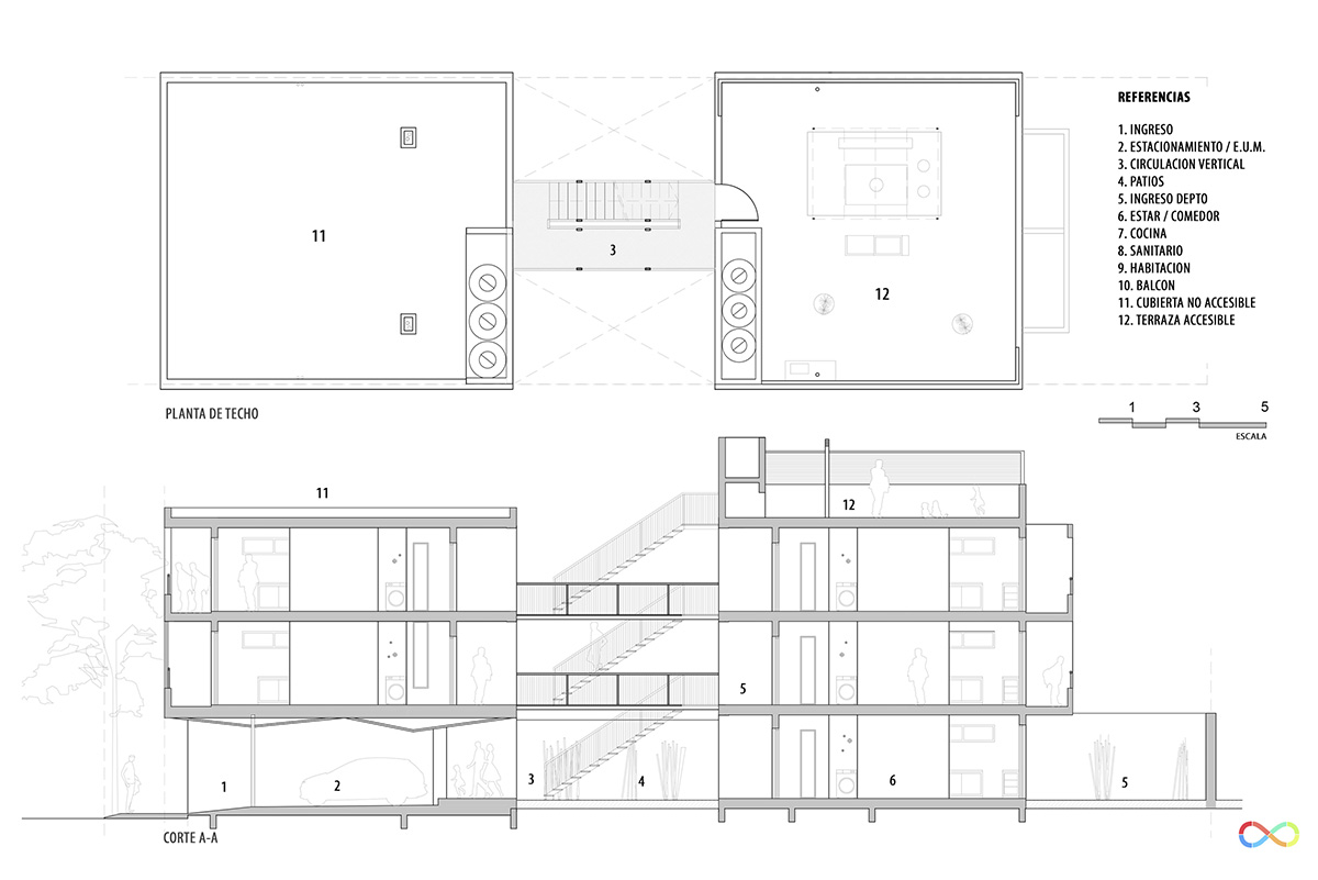
The building contains ten apartments and two common use areas (opened and covered) in two blocks separated by a large patio that contains an open circulation.

In order to integrate public space with the building, an open space is proposed to be used as a gallery and meeting area, with the possibility of parking three cars during the night. Then a central patio links both blocks. Semi-covered halls appear every two apartments. On top of the back block an accessible terrace is an outdoor recreational area with views of Córdoba city.


















Project facts
Architects: Arias Ranea Architects
Design team: Andrea Ranea | Fernando Arias
Location: F. Soler 351 - Córdoba- Argentina.
Construction year: 2017
Built area: 560 m2
Furnishing: En Bruto
Calculations: Ing. Juan Pablo Martinez
All images © Gonzalo Viramonte
> via Arias Ranea Architects
