Submitted by WA Contents
Luigi Rosselli Architects' Book House features shifted concrete slabs overlooking Sydney harbour
Australia Architecture News - Dec 11, 2017 - 03:10 19797 views

Luigi Rosselli Architects has completed a private house for a calligrapher and his wife on the northern side of Sydney’s harbour, comprised of a series of shifted concrete slabs.
Named The Books House, the three-storey private residence takes cues from the concept of "stacked boxes" proposed by the client and the ledges and shelves of Sydney-Hawkesbury sandstone outcrops. This region's surfaces on the steep escarpments of the northern side of Sydney Harbour includes the block of land owned by the calligrapher and the business woman.

Image © Justin Alexander
"A Calligrapher handed three books to his wife, she placed them in a random stack on the table… "We want The Books House", explained the business woman's request in a project brief.
Weathered rock stratums have been replaced by off-form concrete slabs with soft edges, scissoring above a monolithic sandstone storey for the house.

Image © Justin Alexander
An elliptical concrete stair forms the pivot point of each floor of the house, anchoring them to the steep escarpment, the stair also wraps around a lift core that descends, mineshaft-like to link the rest of the house to the garage level.
The rock is integral to the house: from the basement to the uppermost level of the home, where the sandstone formations provide an ancient geological scenography.

Image © Justin Alexander
Both the living room and the Calligrapher’s study have views of the rock face with its gently curving set of steps, expertly carved from the stone that climb to an old Frangipani tree. They also look out over a small swimming pool and a cave excavated into the cliff side, perfect for meditation and longing for a Buddha.

Image © Edward Birch
This home was designed following a reading of The Importance of Living by Lin Yutang, which is a must read in order to gain a greater understanding of the dwelling culture in China, this explains the "Dragon" path that meanders to the front door and is not just necessary to make climbing the steep hill less laborious but also to soften the approach to the house and abandon the straight geometry of the road.

Image © Justin Alexander
"Luigi Rosselli and Kristina Sahlestrom have learned much from the Chinese building culture over the course of this project’s development, and The Books house is an embodiment and crystalisaiton of this ancient culture in stone and concrete," said the firm.

Image © Justin Alexander

Image © Justin Alexander


Image © Justin Alexander

Image © Prue Roscoe

Image © Prue Roscoe

Image © Prue Roscoe

Image © Prue Roscoe








Garage floor plan

Lower ground floor plan

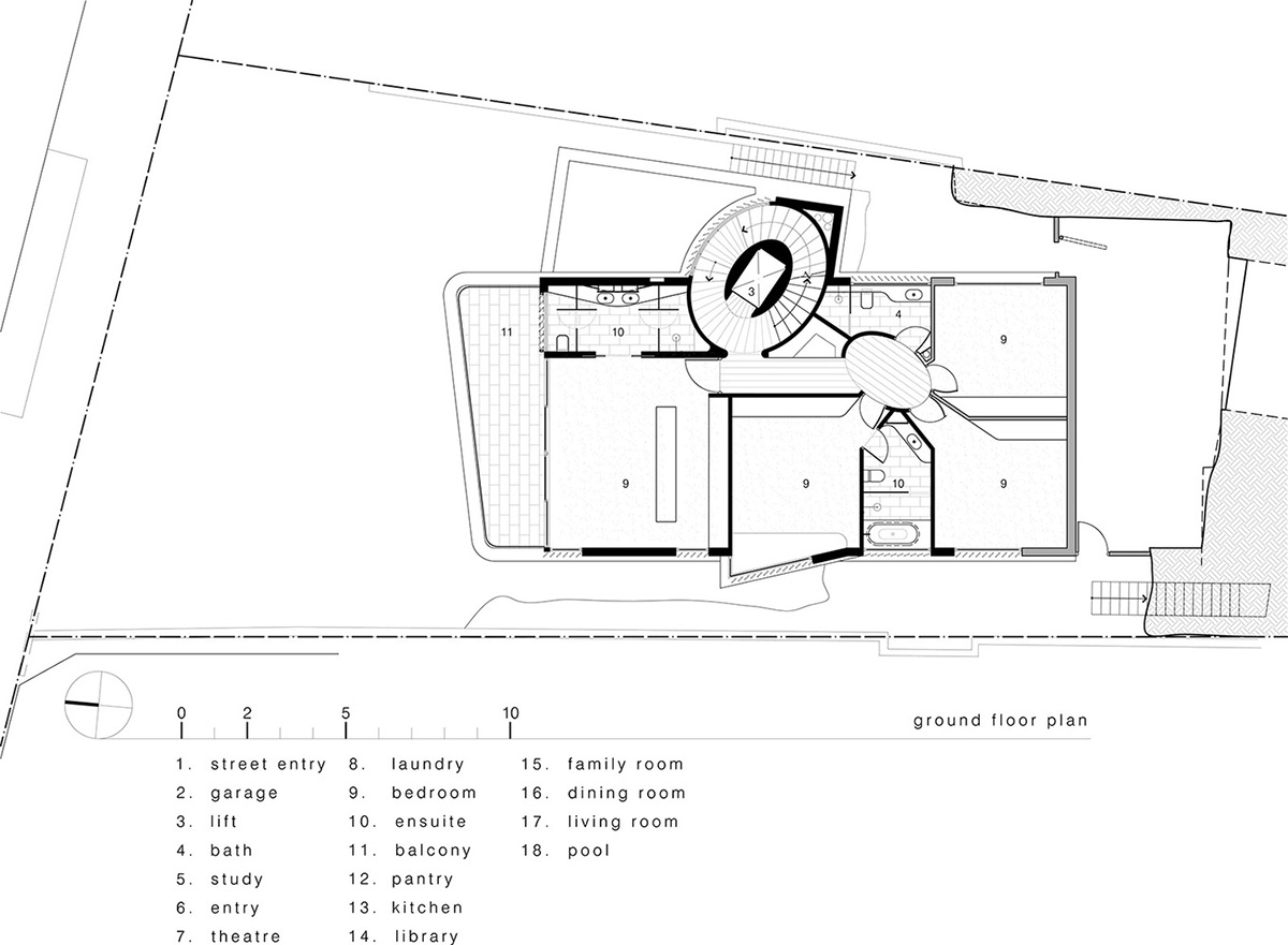
Ground floor plan

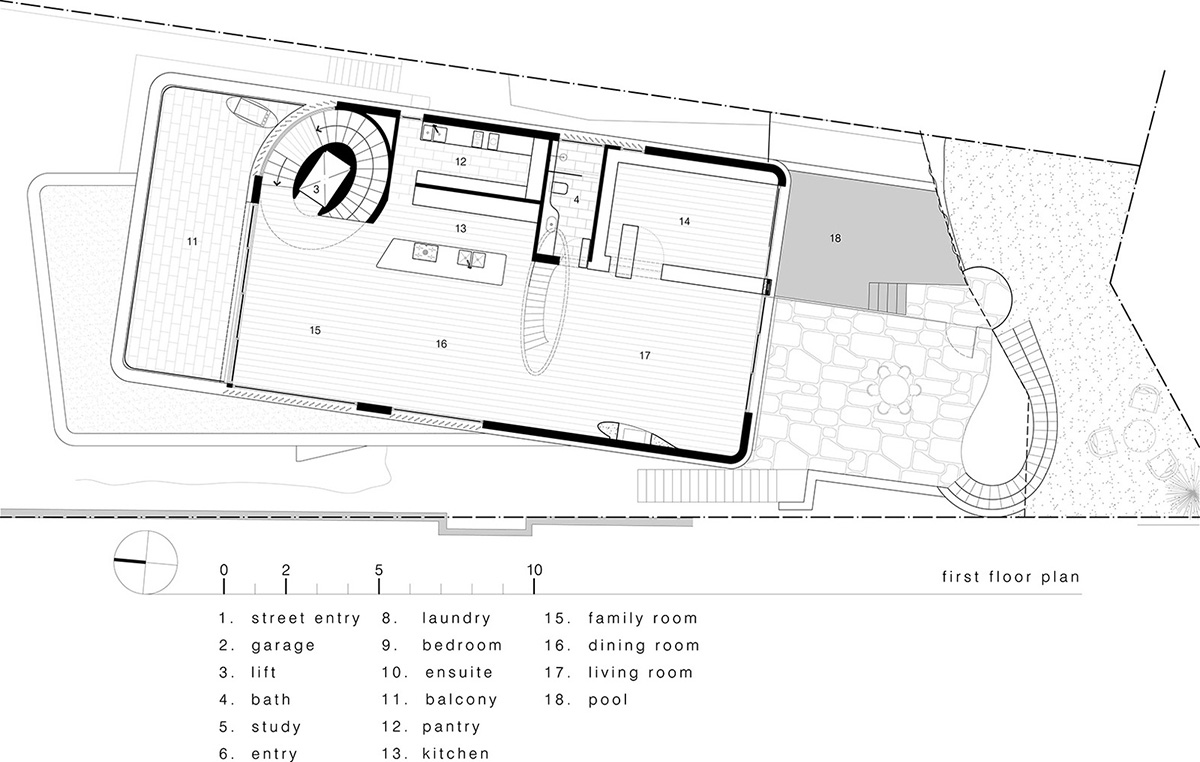
First floor plan
Project facts
Location: Mosman, Sydney
Design architect: Luigi Rosselli
Project architect: Kristina Sahlestrom, David Mitchell, Carl Rutherfoord
Interior designer: Womaine alwill of alwill interiors pty ltd
Builder: Wvolve building group pty ltd
Structural consultant: Wooney & bye pty ltd
Joiner: Contemporary furniture design
Zinc roofing: Sterland roofing pty ltd
Stonemasonry: French stonemasonry
Brass work: Warringah aluminium
Swimming pool: Wright pools
Canvas awnings: Wreative covers and awnings
Fireplace:Weal Wlame
Aluminium windows: Wvolution window systems
Landscaper: William Wangar
All images © Justin Slexander, Prue roscoe, Edward Birch
Top image © Justin Slexander
