Submitted by WA Contents
NL*A Paris has won the competition to build an office block in Nice
United Kingdom Architecture News - Mar 30, 2015 - 10:22 15632 views

The NL*A Agency in Paris, working in partnership with property developer Pitch Promotion, has won a competition to build an office block in Nice.
NL*A Paris, engineering consultants Grontmij, Le Sommer Environnement and Tangram Paysage have been selected to design a 6,400 m² office block with 600 m² of floor space for commercial units on the ground floor.

The project started with a strong statement of intent: to re-think the way an office block is traditionally organized. Circulation which usually occurs in the centre has been diverted to the facades. In this way, the building is completely open to its environment. Thanks to the many terraces, all building users will enjoy stunning vistas. Office workers can meet on these balconies for informal meetings and to take in the views. In this way, working outdoors and making the most of the Mediterranean climate will become second nature.

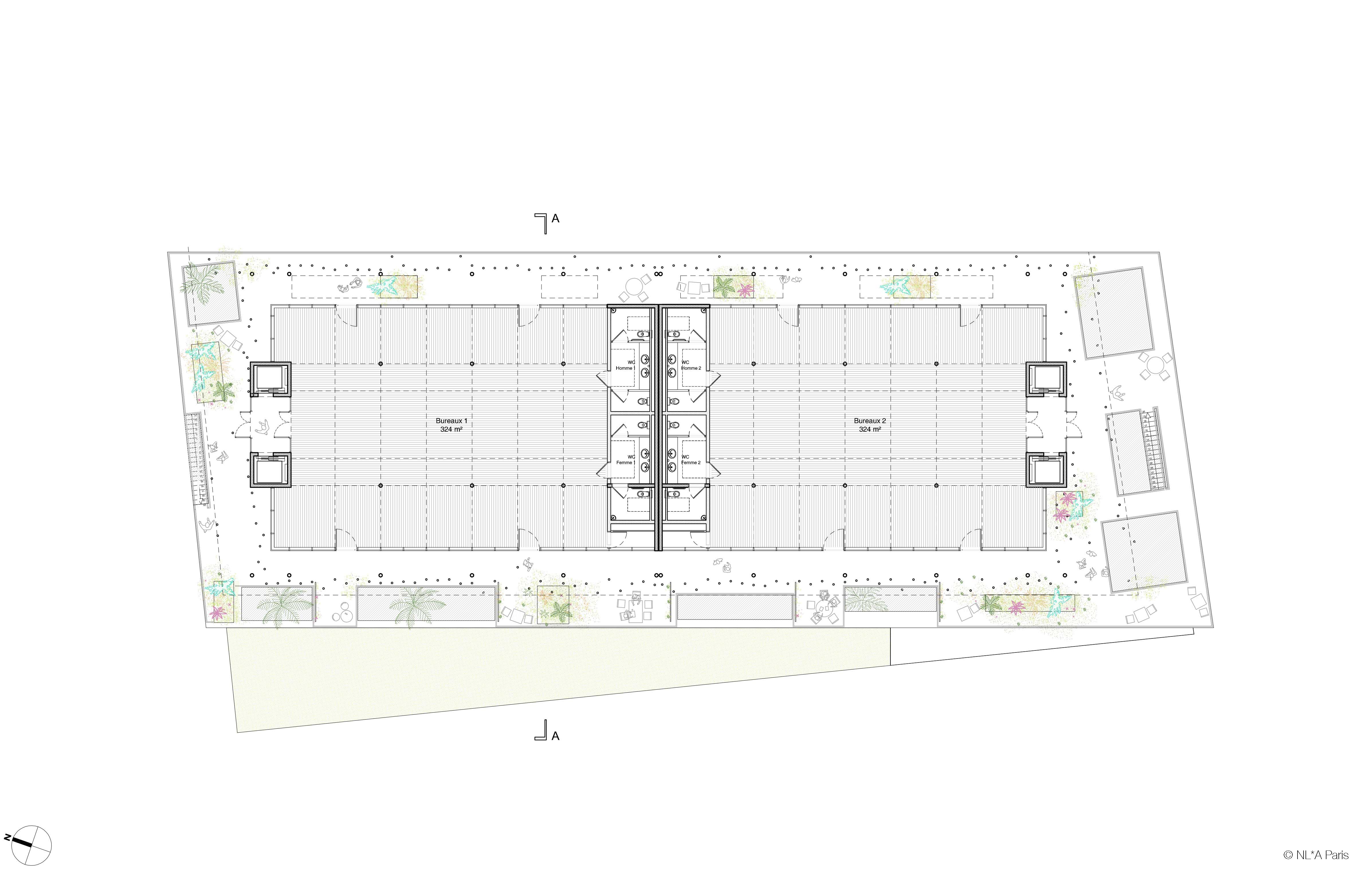
The architecture of the building intelligently caters for collective and personal needs, with a focus on comfort and adapting to the local climate. Essential elements, such as vertical circulation, elevator shafts, toilets and technical premises are efficiently distributed so as to free up the other surfaces. The poles and girders system of construction creates open spaces: either large spaces which can house entire companies or partitions.

The office block with terraces in the Nice Méridia ZAC (urban development zone) has been designed to set the bar for bioclimatic office buildings.
The facades serve as an interface between outside and inside, providing better control over the building's indoor climate. The South-facing facade has been designed with more prominent overhanging elements to shade it from the sun; it includes a staircase and is covered in plants facing the Merida courtyard. The facade at the heart of the island, facing West, has been designed with deeper balconies (the light hitting these areas is more horizontal). The plants on this facade shade building users from the view of residential buildings in the island opposite.




general axonometric view

axonometric office exterior

axonometric modules

axonometric view of circulation


schema concept

schema climate cycle

plan +7

plan +8
Copyright image +plans +documents: NL*A Paris + Rendering by Tamàs Fischer
Project Facts
Type:Closed competition
Architect:NL*A Paris
Nicolas Laisné & Dimitri Roussel
Development:Pitch Promotion
Surface Area:7000 m2 Sdp
Location:Nice, France
Status:Winner
Équipes du projet
NL*A Paris (Paris, France)
Partners:Nicolas Laisné, Dimitri Roussel
Architects in charge:Julie Siol, Stella Buisan, Aglaé Boukouvalas, Leticia Martinez Velasco
Engineer:GrontMij (Nice, France)
Design And Environmental Engineering:Le Sommer Environment (Paris, France)
Landscaping:Tamgram Paysage (Marseille, France)
Perspective:Tamàs Fischer
> via NL*A Paris
