Submitted by WA Contents
VAKKO Fashion Center,Istanbul designed by REX Architects
United Kingdom Architecture News - Mar 19, 2015 - 16:28 28734 views

image © REX Architects
VAKKO Fashion Center is located in Istanbul,Turkey designed by REX Architects and the project has recently won Honor Award as related to 2015 AIANY Design Awards in Architecture section.
Turkey’s pre-eminent fashion house, Vakko, and Turkey’s equivalent of MTV, Power Media, planned to design and construct a new headquarters in an extremely tight schedule using an unfinished, abandoned hotel. Fortuitously, the unfinished building had the same plan dimension, floor-to-floor height, and servicing concept as another one of our projects, the Annenberg Center’s “Ring”, which had been cancelled.

image © Iwan Baan
By adapting the construction documents produced for that project to the abandoned concrete hotel skeleton, construction on the perimeter office block commenced only four days after Vakko/Power first approached our team. This adaptive re-use opened a six-week window during which the more unique portions of the program could be designed simultaneous to construction.

image © Iwan Baan
Whereas the Annenberg Center’s Ring was a fragile, post-tensioned concrete structure which depended upon the robust, steel interior for support, the Vakko/Power one was painfully over-designed, the byproduct of numerous, deadly earthquakes in Turkey.

image © Iwan Baan
Vakko/Power’s interior had to remain detached to not disrupt the structural integrity and waterproofing of the in-situ skeleton. With only two weeks to submit the steel mill order after starting the project, a concept for the interior was developed that established the general steel shapes and quantities while still allowing the design to evolve significantly. These steel boxes could be assembled in myriad configurations while retaining structural self-sufficiency.

ulta-thin glass slumped facade image © Iwan Baan

image © Iwan Baan

The Showcase is clad in mirror-glass, enlivening the building’s interior to kaleidoscopic effect.image © Iwan Baan
A beautiful and refined architectural image was critical to maintaining Vakko/Power’s public profiles; yet, the clumsy structure of the abandoned hotel was impossible to hide given the project’s compressed schedule. We embraced this constraint by designing an exceptionally transparent and thin glass façade.

image © Iwan Baan
By slumping a structural “X” into each pane, the glass’s strength is increased, its need for perimeter mullions eliminated, and its thickness reduced.The result is an ultra-thin sheath of glass that wraps the existing skeleton, subtly revealing the pre-existing concrete frame and suggesting the Showcase behind.

image © Iwan Baan

image © Iwan Baan

meeting room box image © Iwan Baan

Program Diagram (top), Circulation Diagram (bottom) image © REX Architects
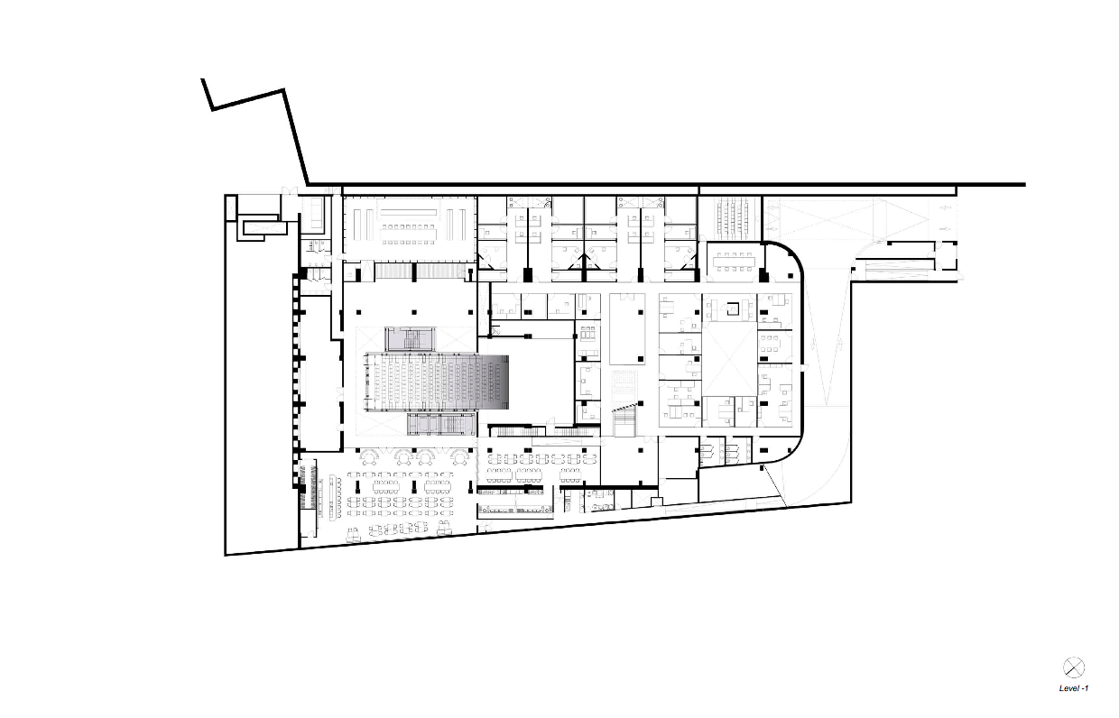
Program adjacencies and code/exiting requirements dictated the final stacking of the boxes.The slopes of the auditorium, showrooms, and meeting rooms create a circulation path that winds from bottom to top of the Showcase.

showroom box image © Iwan Baan

Section before Showcase (top), Section with Showcase (bottom) image © REX Architects
Dubbed the “Showcase”, this unique interior houses the auditorium, showrooms, meeting rooms, and executive offices, as well as all vertical circulation and restrooms. The upper floor of the existing subterranean parking houses Power Media’s television and radio studios, which require acoustic damping and light control.

image © Iwan Baan

auditorium box image © Iwan Baan

image © Iwan Baan

image © Iwan Baan






museum image © REX Architects
Project Facts
Cleints:Vakko and Power Media
Program:Headquarters for a Turkish fashion house—including offices, showrooms, conference rooms, auditorium, museum, and dining hall—as well as the television studios, radio production facilities, and screening rooms of its media sister-company
Area:5,400 m² (58,000 sf) and 3,700 m² (40,000 sf)
Cost:Confidential
Status:Completed 2010
Architect:REX
Key Personnel: Erez Ella, Tomas Janka, Mathias Madaus, David Menicovich,
Tsuyoshi Nakamoto, Joshua Prince-Ramus, Ishtiaq Rafiuddin, Tieliu Wu
Consultants Arte:Autoban, Buro Statik, Cedetas, Dora, Eleksis, Front, Gurmen Muhendislik, Lamglas, Norm Tecnic, Say Yapi, STEP, Superpool, Cem Mimarlik
> via REX Architects
