Submitted by WA Contents
A Tiny House Of Slow Town by The Plus Partners+DNC Architects creates a minimum footprint
Korea, South Architecture News - Dec 29, 2016 - 15:22 27805 views

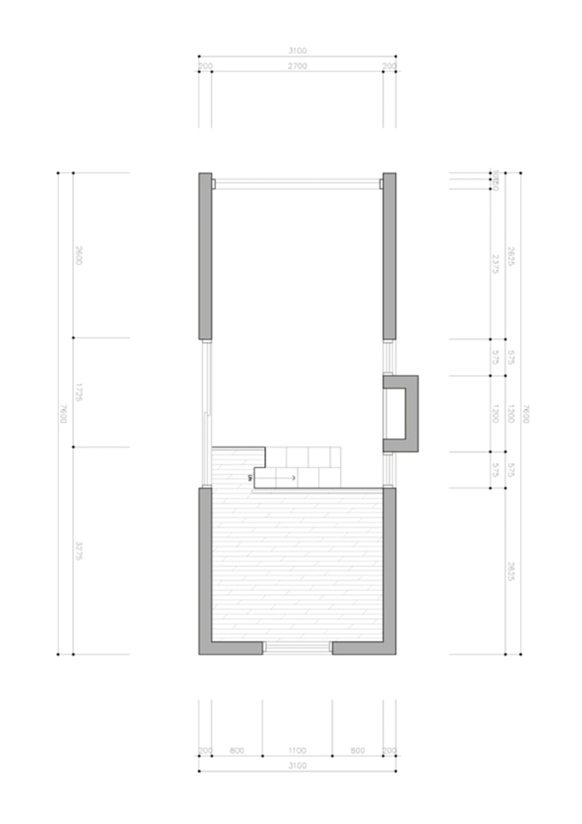
The Plus Partners and DNC Architects have completed a tiny house to maximise housing facilities for the upcoming the Pyeongchang 2018 Olympic Winter Games. The building includes environmentally friendly materials and has a small footprint at the site.
Covering a total of 19,8 square-metre area, the building coated by black-sheets - hipped roof and large windows create a contrast with sunlight reflection throughout the day. The interior of the house is covered by fully-wooden material and painted with yellow colour without using any extra furnitures or fixtures.

In the garret, the bedroom only includes a large bed with black decorated-railings. The tiny house's roof space is only lightened with a slender window. The space provides double-hight in the interior to create a flexible space to move and rest.













All images © The Plus Partners
> via The Plus Partners
