Submitted by WA Contents
The 35 self-catering mountain lodges by KOKO Architects scattered on the rocky shores of Norway
Norway Architecture News - Sep 30, 2016 - 10:55 18862 views

KOKO Architects has completed the design of 35 self-catering mountain lodges located on the rocky shores of the Soddatjørn Mountain Lake, Norway. Named Skapet, the exterior finishes on the lodges are made of rolled zinc, and they resists the wind and snow and does not require maintenance for decades, which are now open to amateur hikers and mountaineering enthusiasts.
In 2013, the Norwegian Tourism Association organized an architectural competition to construct self-catering mountain lodges for the hiking trail around Lysefjord and on the rocky shores of the Soddatjørn Mountain Lake. The competition criteria stipulated that the lodges must be contemporary, easy to maintain and use ready-made factory modules in order to avoid long construction periods in the inaccessible mountains and unpredictable weather conditions.

Image © Marius Dalseg / The Norwegian Trekking Association
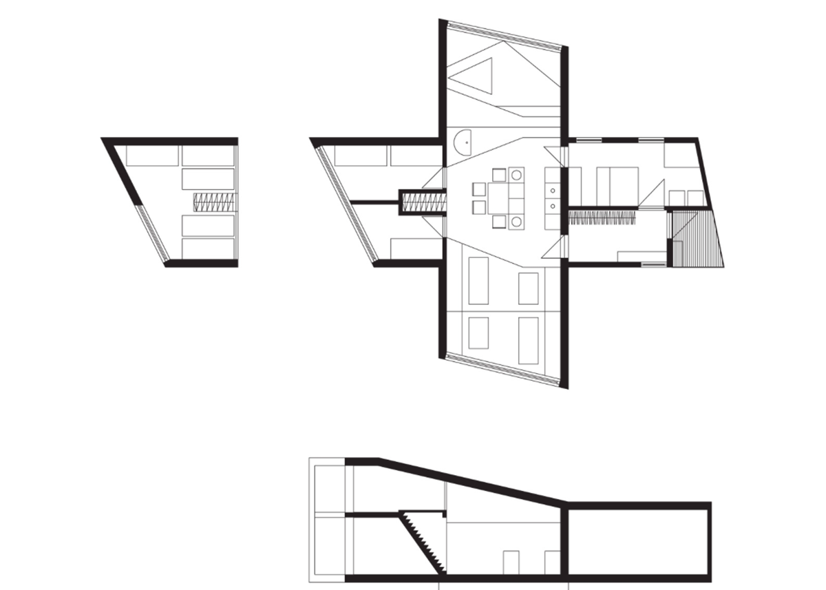
Covering 350 square meters, KOKO Architects' design approach pushed the limits of the wilderness experience one step further. The group of buildings includes a main building, sleeping cabins, a toilet with a storage room and a sauna. Water can be taken from the lake and there is no mains electricity supply.

Image © Tõnu Tunnel
Commissioned by Stavanger Turistforening, the main building, sleeping cabins and sauna are heated by using wood. There are two gas stoves in the kitchen that visitors can use at the same time and a solar panel provides lighting. The hikers can wash themselves in the sauna where the washing room is located directly above a mountain stream.

Image © Tõnu Tunnel
The interior uses a lot of wood, which creates a warm and friendly atmosphere. All of the buildings have a wall of glass with panoramic views of the surrounding picturesque landscape. The main building with its rectangular plan and kitchen, living area and sleeping facilities, can accommodate 30 to 35 trekkers.

Image © Tõnu Tunnel
The smaller lodges can accommodate five. The rooms in the main building are arranged to encourage interaction between different trekking parties. The mountain lodges were opened to all visitors and hikers in August 2016.
Visitors are usually members of Norway’s trekking associations, one of them the Stavanger Trekking Association, which has 25,000 members and provides active, versatile and environmentally friendly activities in the wilderness for young and old, families, amateur hikers and mountaineering enthusiasts.

Image © Tõnu Tunnel
The rent system is built on trust on site; each person leaves money for the accommodation in a box inside the lodge or fills in an invoice form with their personal information. Since the lodges are mostly a long way from roads and traffic and difficult to get to, it is also the task of the visitors to take care of the visitors coming after them: everyone replenishes the food supply, brings firewood and cleans the lodge before they leave.

Image © Tõnu Tunnel

Image © Tõnu Tunnel

Image © Tõnu Tunnel

Image © Tõnu Tunnel

Image © Tõnu Tunnel

Image © Tõnu Tunnel

Image © Tõnu Tunnel

Image © Tõnu Tunnel

Image © Tõnu Tunnel

Site plan. Image © KOKO Architects

Plans. Image © KOKO Architects

Plan and section. Image © KOKO Architects
Project Facts
Architect: KOKO Architects
Location: Soddatjørn, Norway
Client: Stavanger Turistforening
Commission: 2013
Completed: 2016
Size: 350 m2
Top image © Tõnu Tunnel
> via KOKO Architects
