Submitted by WA Contents
Carlos Marin completes hybrid residential building Rodin 33 in Mexico city
Mexico Architecture News - Sep 15, 2016 - 19:50 20379 views

Carlos Marin has completed its new residential building in Mexico city, presenting extreme verticality in a low-rise settlement. Developed by HAUSM2, the apartment building is located in a narrow site dimensions measuring 7.8m wide by 28m long on Rodin 33 street, this conditions demands an accurate lecture of the architectural program. To optimize the interior space, the studio decided to look forward for a structural sistem that allow us to enjoy the open space.
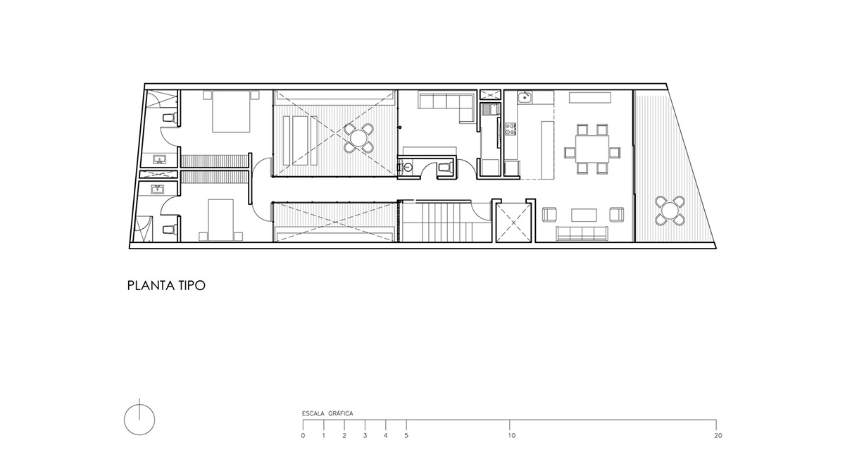
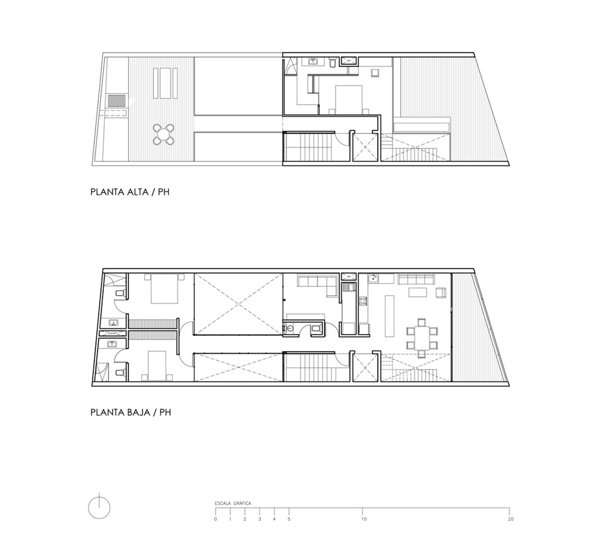
The living room and dinner room are clearly conected to the exterior terraces taking the widest side of the site 7.8 meters. One apartment is located by floor, allowing to the user take an interesting view of the Mexico city skyline.

The facade is molded by a 20 square meters terrace that is contained by a concrete frame structure, this semiopen terrace allows to the user transform the space in an hybrid condition between interior and exterior space. In this way the habitant can increase or decrease the interior space by the displacement of the glass facade.


To provide natural lighting for each living space of the building the studio decided to create an interior 6 meters patio, this void divides the public and privative areas. Two lateral walls of reinforced concrete are combined together with 10 foundation piles 18 meters deep to support the entire structure of the building.

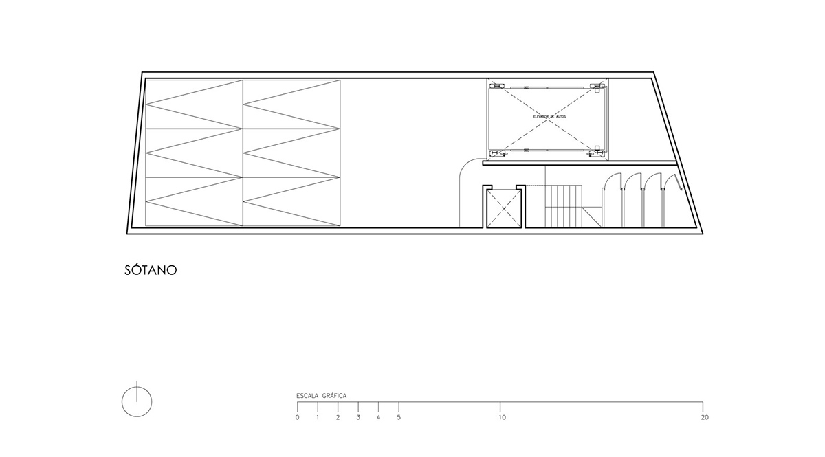
Transversely a series of reinforced concrete beams running side by side defines each apartment floor. In parking lots you can appreciate the constructive system used throughout the development, in this space the structure remains exposed. This constructive system allow us to optimize construction time. In two basements the studio placed, the lobby, two parking floors, elevators, engine rooms, water tank, services and storage rooms.











Project Facts
Architect: Carlos Marin
Facilities Project: Alejandra Siebel Ing.
Management and Coordination: HAUSM2
Structural project: Eng Gerson Huerta.
Location: Rodin 33, Naples, CDMX
Area: 1,200 m2
Project Year: 2015
Built Year: 2015-2016
All images © Onnis Luque, courtesy of HAUSM2
> via HAUSM2
