Submitted by WA Contents
Chilean house comprises concentric and non-directional structure wrapped by four rigid frames
Chile Architecture News - Dec 12, 2016 - 10:09 18693 views

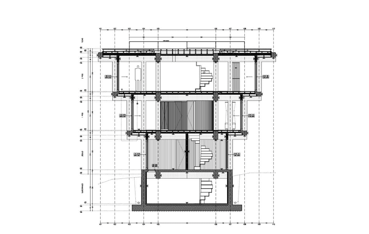
Pezo Von Ellrichshausen completes a monolithic piece comprised of stratified floors and open corners on the skirts of Navidad region, Chile. The house is a concentric and non-directional structure formed by four rigid frames, with eight continuous columns that allow for open corners in every floor and other eight that step up regularly in the two elevated levels.
The private house acts both as a monolithic sculpture with its immersive appearance and fully-open, dramatic living space looking endless landscape in the region of Navidad. The architect designs an inspiring framework and structural system which creates its own architectural identity and character by dominating green environment.

Named Nida House, the private house is balanced with sequence in which every floor is symmetrically protected by the following one. The foot of each exterior column is slightly misaligned from the perpendicular beams, thus their heads seem to outline decorative triglyphs.

The building is a monolithic piece that supports an entirely confined framework within a compact figure, producing a flat landscape from within, dense and almost mechanically stratified.

Throughout an eccentric spiral staircase there is a transition from the smallest and shaded storey, compartmented in quadrants with an access in the central crossing point, to another storey diagonally divided by a block of furniture and, in the highest level, to an open and diaphanous plan, although filled with corners, where an informal aerial life can unfold.

From the top, the visual relationship with the inferior floor is imperceptible, to the point of cancelling any contact with the natural ground. This veiled logic of an inverted gravitational adjustment (a classical 'entasis') timidly emerges on top of the surroundings foliage.
In between the darkened reinforced concrete grid there is only native wood for platforms, furniture and large glass panels of fixed or sliding window frames.

Perhaps, due to its artificial weightlessness, despite natural efforts descending through the very centre, along a thick core, experiences always tend to be suspended against the solid shadows of each perimeter, against silhouettes backlit by the sun, or rather because of the seduction of their immaterial reflections.

Pezo Von Ellrichshausen is a Chilean architecture studio focusing on art and architecture, founded Southern Chile in 2002 by Mauricio Pezo and Sofia Von Ellrichshausen. The studio recently completed Vara Pavilion, comprising a geometric set of interlinked circles presented in the Venice Architecture Biennale 2016, Deci Pavilion for the Foire Internationale d’Art Contemporain 2016, and Finite Fomat exhibition at the Gallery of Contemporary Art and Architecture in Czhech Republic in 2015.








All images © Pezo Von Ellrichshausen
> via Pezo Von Ellrichshausen
