Submitted by WA Contents
Schemata Architects completes Blue Bottle Coffee Nakameguro Cafe in Tokyo with right-angled roof
Japan Architecture News - Nov 05, 2016 - 17:24 19814 views

Schemata Architects has completed new cafe space, mixed with office, in Tokyo, Japan with right-angled roof, which creates a fifth facade between historic buildings. Jo Nagasaka, Principal of Schemata Architects, renovated on of his favorite buildings that he used to see every day.
''About nine years ago, we had co-established a shared office HAPPA across the street from the building and relocated our former office there; we employed to observe the neighborhood through the glass and this building was my most favorite among others on the street,'' says the architect.

Incidentally, Blue Bottle Coffee decided to open their fifth shop there and the studio was commissioned to renovate the building to accommodate cafe/office, spaces used for barista training and workshop.
It was a three-story steel structure formerly used as an electric factory, and the architects intended to hereby create a “fair relationship” between all people present, which is our basic spatial concept for Blue Bottle Coffee.

Since this neighborhood is located far from the station, the streets are lined with many unique and small-sized shops. In order to continue the sense of small scale into the space, floors are divided in a stepped-floor style, while utilizing the existing openings formerly used for loading/unloading and storing.
Horizontal pivot windows installed on the front glass façade help defining the boundary between the interior and the surrounding environment, while establishing a visual relationship of “see and be seen” so that people become aware of each other’s presence wherever they are in the space.










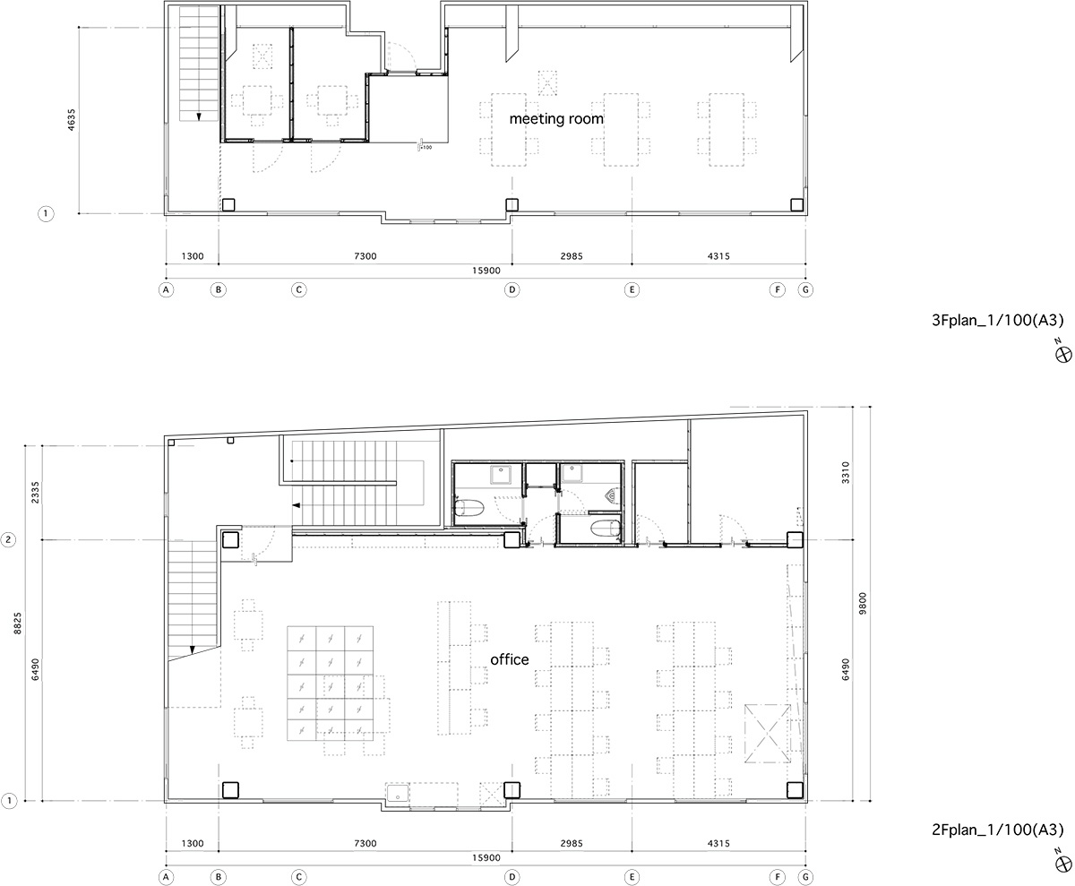
2nd and 3rd floor plan

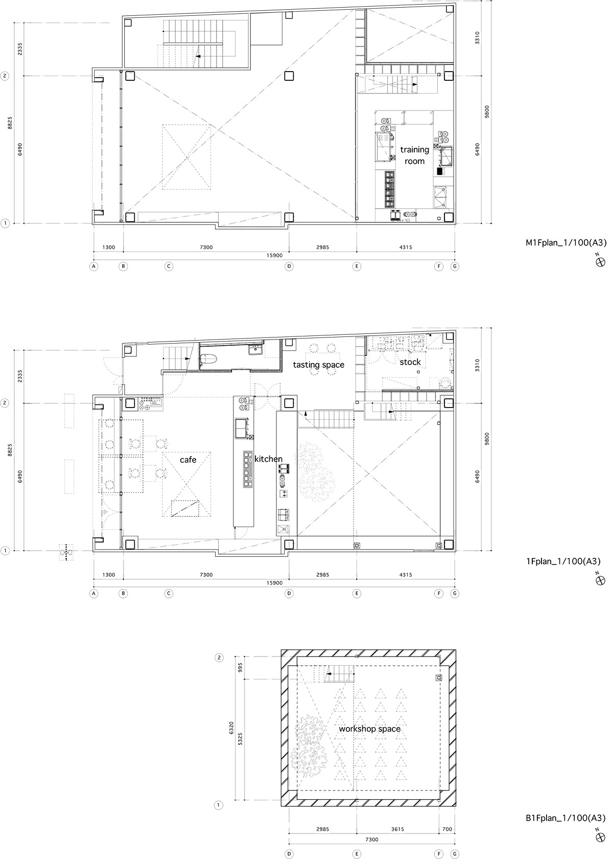
Basement, 1st floor plan and meeting room floor plan

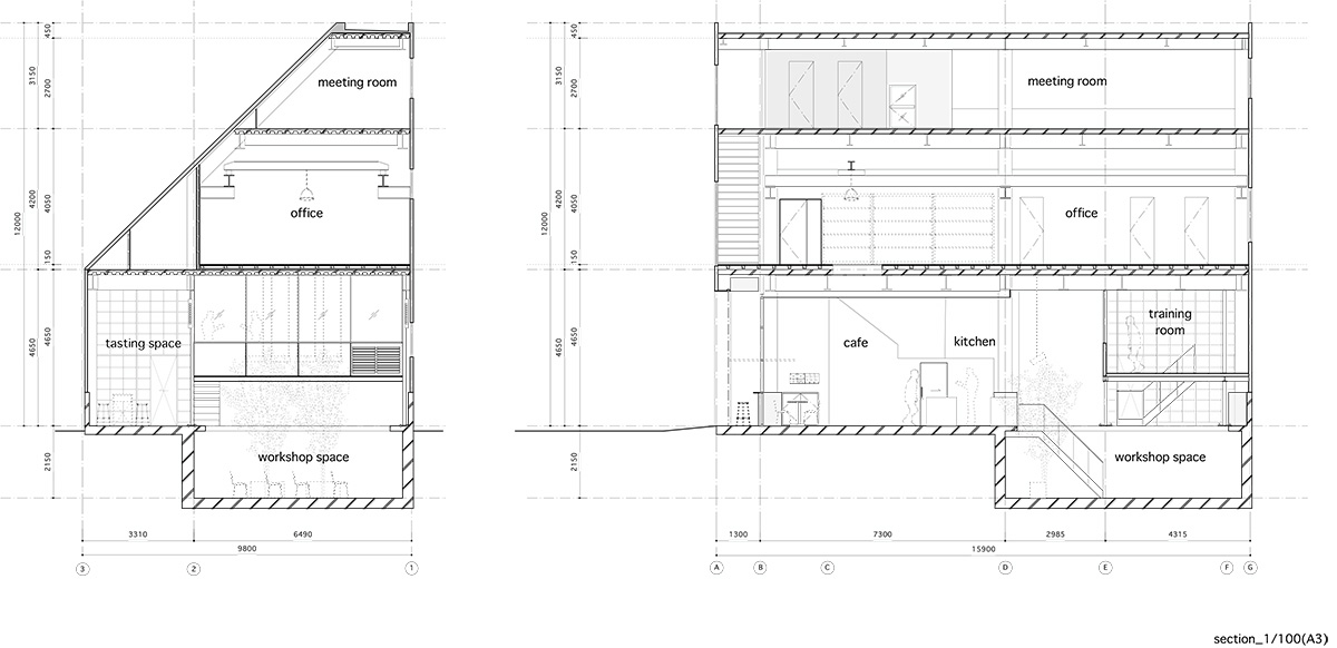
Section 1-2
Project Facts
Project name: Blue Bottle Coffee Nakameguro Cafe
Architect: Jo Nagasaka / Schemata Architects
Project team: Ryosuke Yamamoto, Yui Matsushita
Location: 3-23-16 Nakameguro Meguro-ku Tokyo Japan
Usage: Cafe+office
Construction: TANK
Collaboration: Soup Desig(sign)
Floor: 3 stories above ground and 1 below
Area: 397.32m2
Completion: October, 2016
All images © Takumi Ota
> via Schemata Architects
