Submitted by WA Contents
MVRDV’s ’spheriform’ Library nears completion in China
China Architecture News - Jun 22, 2016 - 19:21 24843 views

MVRDV's new 'spheriform' library is nearing completion in Tianjin, China. The 34,200 m2 building forms part of the new Binhai Cultural Centre, the masterplan of which was designed by German architects GMP, and joins four other buildings through a series of ‘cultural corridors’. The library bases itself around a mirrored spherical auditorium which, coupled with the main atrium, forms an eye that gives panoramas of the interior space and reflects the beautiful park in front of the building.
Terraced bookshelves echo the sphere throughout the atrium, leading users up into the heart of the library, before continuing around the building as louvres. The cultural project was designed for Tianjin Binhai District and is estimated to be open to the public in mid-2017.

The library forms part of a larger cultural complex. Image © MVRDV
MVRDV have, with the Tianjin Urban Planning and Design Institute (TUPDI), designed Tianjin Binhai Library as part of a larger plan to provide a cultural district for the city. The building acts not only as an education centre but as a connector from the park into the cultural district.
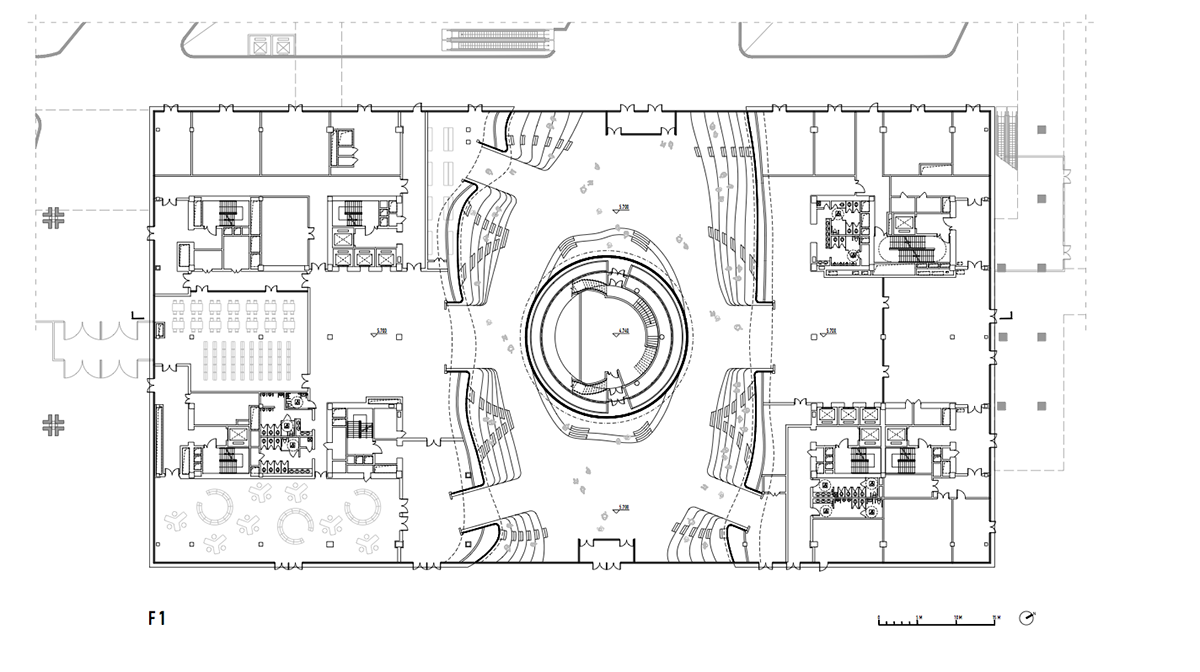
An oval opening, punctured through the building is propped open by the Eye, a mirrored sphere with an auditorium, which takes the main stage within the atrium and enlarges the perceived space within. Terraced bookshelves which echo the form of the sphere create an interior, topographical, landscape whose contours reach out and wrap around the façade. In this way, the stepped bookshelves within are represented on the outside, with each level doubling up as a louvre.

Terraced bookshelves echo the sphere around the auditorium. Image © MVRDV
''The Eye is the centre of the library. It ‘hollows out’ the building and creates, out of bookshelves, an environment to sit, to read, to hang out, to climb and to access, to create an organic social space,'' explains MVRDV co-founder Winy Maas. ''In its heart is the auditorium which mirrors the environment, giving a 360 degree panorama of the space inside; a truly reflective and pensive environment.''
The futuristic library sits within a sheltered gallery, topped with cathedral-like vaulted arches, which winds its way throughout the scheme. MVRDV’s project is surrounded by four other cultural buildings designed by an international team of architects including Bernard Tschumi Architects, Bing Thom Architects, HH Design and GMP.

Main entrance to the auditorium. Image © MVRDV
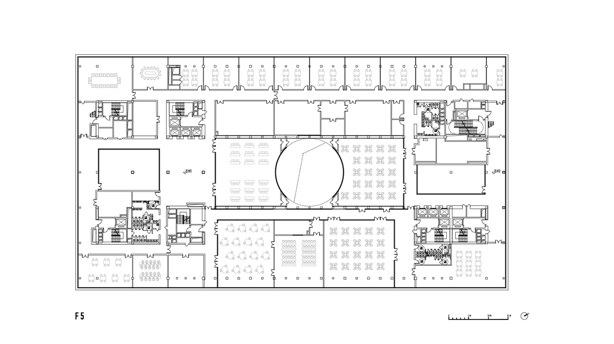
The five levels of the building contain an extensive programme of educational facilities. The subterranean level has in it service spaces, book storage and a large archive, whilst above this on the ground floor are easy access reading areas for children and the elderly, the main entrance and access to the cultural complex, the auditorium and terraced access to the floors above. The first and second floors consist primarily of reading rooms, books and lounge areas whilst the top two floors also include meeting rooms, offices, computer rooms and audio rooms.

The Sphere. Image © MVRDV
Tianjin Library is part of German architects GMP’s 120,000m2 masterplan which aims to accentuate the characteristics of the surrounding districts. Through its design the complex will become a junction point for the CBD, old town, residential districts, commercial areas and the government quarter; hoping to compensate for any missing programme in each.

Step diagram. Image © MVRDV
The library’s outer volume was given in the masterplan so the Eye and its surrounding semi-public area is an internal space, like an inverted icon, acting as a central point and folly in the building. The project will be MVRDV’s second completed design in Tianjin. TEDA Urban Fabric, completed in 2009, provided 280,000 m2 of mixed high and low-rise housing and retail.

Book mountain activities. Image © MVRDV

Diagram of circulation- program. Image © MVRDV

Floor-1 plan. Image © MVRDV

Floor-2 plan. Image © MVRDV

Floor-3 plan. Image © MVRDV

Floor-4 plan. Image © MVRDV

Floor-5 plan. Image © MVRDV

Technical roof. Image © MVRDV

Roof plan. Image © MVRDV

Basement plan. Image © MVRDV
Top image: MVRDV's Tianjin Binhai Library centres around a mirrored auditorium. Image © MVRDV
> via MVRDV
